Phoenix Contact расширяет линейку источников бесперебойного питания для сетей переменного тока. новая модель QUINT4‑UPS/1AC/1AC/1KVA мощностью 1000 В·а обеспечивает безударное переключение с сети на батарею и до нескольких часов автономной работы. С помощью восьми вариантов аккумуляторных батарей можно спроектировать решение для различных условий эксплуатации. ИБП выпускается в промышленном исполнении: диапазон температур эксплуатации –25…+60 °C, вибрационные нагрузки до 0,7g, устойчивость к электромагнитным помехам согласно промышленным нормам ЭМС.
Экономия пространства
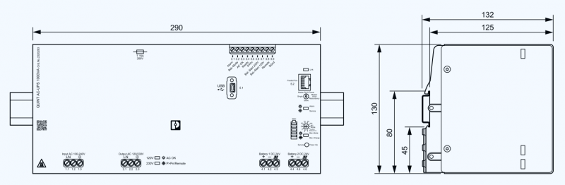
Ширина ИБП (рис. 1) всего 290 мм — это меньше ширины одного листа А4, а высота и глубина аналогичны источникам питания этой же серии QUINT4.
Благодаря тому, что все элементы управления и индикации расположены на передней панели, ИБП может размещаться в неглубоких шкафах с односторонним обслуживанием (рис. 2).
Устройство имеет штатное крепление на DIN-рейку, но с учетом массы в 5 кг рекомендуется использовать рейку высотой 15 мм, а лучше усиленную (в номенклатуре Phoenix Contact есть рейка из стали толщиной 2,3 мм NS 35/15-2,3 UNPERF 2000MM).
Кроме того, можно использовать стандартный адаптер UWA 130 для крепления непосредственно на панель. Батареи используются внешние, что предоставляет возможность гибко подходить к проектированию шкафа. Например, ИБП можно разместить в верхней части шкафа, а батареи в нижней части, более прохладной. Так же как и все источники питания Phoenix Contact, этот ИБП не имеет вентиляторов, пассивное охлаждение осуществляется естественной конвекцией воздуха через кожух.
Чистый «синус» на выходе
QUINT4-UPS/1AC/1AC/1KVA спроектирован по схеме с двойным преобразованием (онлайн ИБП). Это обеспечивает полностью безударное переключение в режим работы от батареи при отключении сетевого напряжения (рис. 3).
Согласно стандарту IEC 62040-3, класс этого ИБП — VFI-SS-111, что подразумевает полностью независимое от амплитуды и частоты входного напряжения выходное напряжение с синусоидальной формой, как в режиме работы от сети, так и в режиме работы от батареи (SS).
Два QUINT4-UPS/1AC/1AC/1KVA можно подключить как параллельно, с целью резервирования «1+1», так и с целью повышения мощности в два раза — до 2000 В·А. Синхронизируются оба ИБП обычным патчкордом, через расположенные на передней панели порты RJ-45, рядом с которыми установлены поворотные переключатели Master/Slave.Таким образом, настройка параллельного режима производится без программного обеспечения.
Интеллектуальное управление батареями
Как для модельного ряда QUINT-UPS, так и для нового QUINT4-UPS/1AC/1AC/1KVA используются те же аккумуляторные модули UPS-BAT, с выходным напряжением 24 В DC. Отличие состоит в том, что к QUINT4-UPS/1AC/1AC/1KVA аккумуляторные модули UPS-BAT подключаются парами, чтобы обеспечить номинальное входное напряжение инвертора 48 В. При этом более высокое напряжение позволяет снизить выделение тепла в случае работы с нагрузкой большой мощности. На блок-схеме можно
увидеть, что внутри ИБП батареи подключаются последовательно (рис. 4).
В основе нового ИБП заложена собственная разработка Phoenix Contact — IQ-TECHNOLOGY, предназначенная для управления и диагностики состояния батарей. Ключевыми преимуществами является определение уровня заряда батареи (State Of Charge) и прогнозирование ее срока службы (State Of Health). Благодаря этой технологии обеспечивается оптимальное использование аккумулятора. Его параметры измеряются на основе статистики таких важных данных, как температура эксплуатации, число и глубина циклов заряда/разряда, внутреннее сопротивление батареи, вычисляется оставшийся срок службы аккумулятора. Также QUINT UPS определяет текущий уровень заряда батареи, текущую мощность нагрузки и на основании этого в динамическом режиме вычисляет оставшееся время работы в буферном режиме.
Таким образом, в любой момент времени пользователь осведомлен о состоянии аккумулятора и может своевременно спланировать замену батареи при завершении ее реального срока службы. ИБП постоянно рассчитывает оставшийся срок службы батареи, поскольку данный параметр является величиной переменной, зависящей в основном от температуры эксплуатации и интенсивности заряда/разряда аккумулятора. Следует также отметить, что замену аккумуляторов можно выполнять в горячем режиме без отключения ИБП и потребителей.
Кроме расширенного мониторинга состояния энергоаккумулятора QUINT UPS-IQ обеспечивает оптимальный режим его заряда. Заряд происходит в три стадии: сначала постоянным током, затем постоянным напряжением, потом капельным зарядом для компенсации саморазряда. Выбор максимального зарядного тока происходит автоматически, в соответствии с конкретным типом аккумулятора и его емкостью. Эту информацию ИБП получает от батареи по коммуникационному интерфейсу. Предлагаемые аккумуляторные модули UPS-BAT имеют в своем составе не только сами батареи, но и небольшой электронный модуль. Данный модуль производит измерение параметров аккумулятора и передает их в ИБП. Термокомпенсация напряжения заряда осуществляется на основании температуры, измеряемой непосредственно около аккумулятора. Во время разряда ИБП отключает аккумуляторы при снижении суммарного напряжения ниже определенного уровня, чтобы не допустить вредного для них глубокого разряда.
Время автономной работы. конечно же, зависит от мощности нагрузки и емкости аккумулятора. Например, самый маленький аккумулятор — UPS-BAT/VRLA/24DC/3.4AH емкостью 3,4 А·ч обеспечит всего 2 мин автономной работы при номинальной мощности 900 Вт, а самый большой, емкостью 38 А·ч, — около 1 ч работы (рис. 5).
Кроме стандартных герметичных свинцово-кислотных аккумуляторов UPS-BAT/VRLA/, к ИБП могут подключаться литийионные аккумуляторы UPS-BAT/LI-ION, которые имеют на порядок больший ресурс циклов заряда/разряда по сравнению с VRLA-аккумуляторами (до 7000). Кроме того, за счет более низкого внутреннего сопротивления они хорошо держат высокие токи нагрузки и могут в два раза дольше храниться без подзаряда. Температурный диапазон литий-ионных аккумуляторов составляет –25…+60 °C. Перечисленные преимущества вкупе с длительным сроком службы (15 лет) делают их отличным выбором для систем, где предполагается частый переход в буферный режим.
Диагностика состояния
Для мониторинга состояния и управления в QUINT4-UPS/1AC/1AC/1KVA используются дискретные выходы/входы (рис. 6).
Всего предусмотрено пять выходов: Alarm (обобщенная авария), Bat-Mode (режим работы от АКБ), AC OK (входное напряжение в норме), Ready (АКБ заряжена), P>Pn (превышение номинальной мощности).
Имеется два входа: в отсутствие сетевого напряжения Bat-Start обеспечивает холодный запуск от батареи, а Remote отключает ИБП в режиме работы от батареи.
С помощью mini-USB-интерфейса и бесплатной программы UPS-CONF (рис. 7) можно более детально контролировать состояние ИБП и аккумуляторов.
Если подключить ИБП к промышленному компьютеру через USB-интерфейс, то можно задействовать режим PC-Mode, предназначенный специально для работы с ПК.
Установленная на компьютере программа UPS-CONF, через заданное время после переключения ИБП в буферный режим, автоматически даст команду ОС Windows для завершения работы. Это позволяет предотвратить потерю данных из-за внезапного отключения питания ПК. В случае необходимости можно использовать драйвер для систем на Linux и передавать данные по Modbus RTU.
Программа UPS-CONF выводит в удобном виде информацию на экран о заряде батареи, ее прогнозируемом сроке жизни и режиме работы UPS в данный момент времени. В случае пропадания питания или неисправности появляются аварийные сообщения и ведется логирование событий. Дополнительно можно посмотреть напряжение, разрядный ток и температуру батареи. В расширенных настройках задается конфигурация дискретных входов/выходов, настраиваются временные интервалы и гистерезис перехода на режим работы от батареи или от сети.
Таким образом, новый онлайн-ИБП с резервированием QUINT4-UPS от Phoenix Contact удовлетворяет самым разным запросам потребителей и обеспечивает высокую надежность и безотказность в работе.