Работа напрямую с производителем Востокэнерготранс вы покупаете надежный и высокотехнологичный товар, а так же значительно экономите на покупке.
Характеристики трансформатора сухого типа с литой изоляцией 2000 квА:
- Производитель: Востокэнерготранс.
- Тип: Силовой трансформатор;
- Вид: Трехфазные;
- Концепция конструкции: Стержневые;
- Охлаждение: Воздушное AN AF;
- Номинальная мощность: 2000 кВа;
- Номинальное высшее напряжение: 6 кВ ВН;
- Номинальное низшее напряжение: 0.4 кВ НН;
- Степень защиты кожуха (корпус): IP00 без кожуха;
- Схема и группа соединения обмоток: D/Yн-11 (треугольник / звезда);
- Материал обмотки: Алюминий;
- Вид трансформатора: Трехфазный ;
- Климатическое исполнение: УХЛЗ — неотапливаемые помещения с возможной конденсацией.
- Тип вывода ВН и НН: Шина, либо Кабель.
- Расположение выводов ВН: по согласованию с заказчиком.
- Расположение выводов НН: по согласованию с заказчиком.
- Материал выводов НН: алюминий, либо медь.
- Уровень шума дB (A): Менее 70;
- Охлаждение: Естественное С (AN AF);
- Высота установки над уровнем моря, м: До 1000;
- Потери холостого хода (120°C) ± 15%, Вт: 3050;
- Потери короткого замыкания (120°C) ± 10%, Вт: 14450;
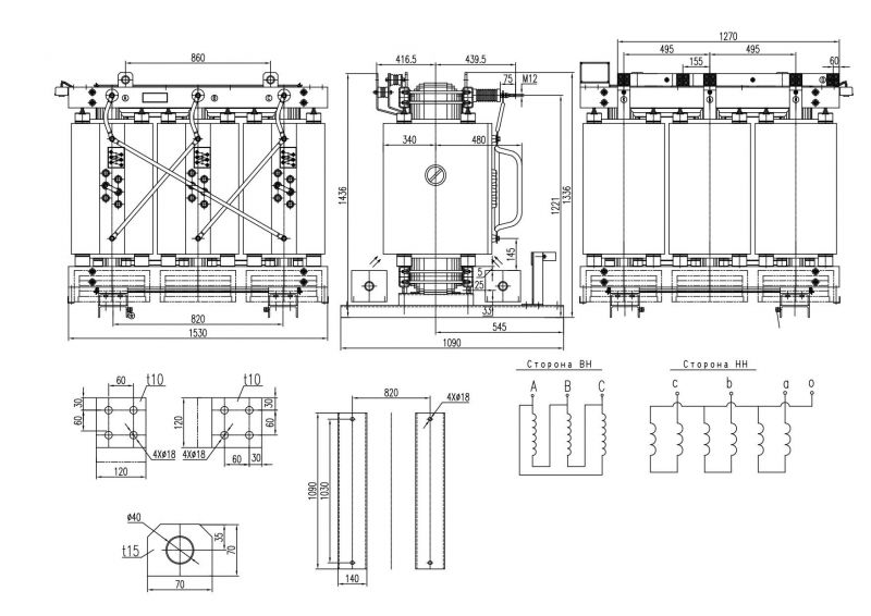
- Габариты трансформатора, мм: 1530*1090*1336;
- Колея колес (или опор), мм: 820*1030;
- Вес трансформатора без кожуха ± 10%, кг: 3510;
- Производитель сухих трансформаторов Востокэнерготранс предлагает трансформаторы типа ТСЛ и ТСЗЛ. Купить трансформатор сухой ТСЛ 2000 ква 6/0,4 с литой изоляцией вы можете у производителя Востокэнерготранс.
- Трехфазные сухие трансформаторы имеются в наличии и на заказ.
Чертеж сухого трансформатора ТСЛ 2000 ква

Типовая комплектация трансформаторов ТСЛ 2000 ква 6/0,4:
- Вентиляторы 4 шт;
- Цифровой блок температурного контроля BWDK с терморегулятором и датчиком температуры обмоток (3−4 шт) выполняющий роль шкафа тепловой защиты. Трансформатор;
- Транспортные колёса — ролики;
- Паспорт на трансформатор;
- Сертификат сейсмостойкости (до 9 баллов);
- Сертификат соответствия ГОСТ Р12.1.004−91 «Система стандартов безопасности труда. Пожарная безопасность».
- Протокол испытаний независимой лаборатории на соответствие товара заявленным характеристикам.
Гарантийные обязательства 60 месяцев с момента передачи товара покупателю. Чертеж сухого трансформатора ТСЛ 2000 ква с литой изоляцией прилагается.
Тип объявления:
Срок размещения:
Рубрика:











