Работая напрямую с производителем Востокэнерготранс вы покупаете надежный и высокотехнологичный товар, а так же значительно экономите на покупке.
Технические характеристики трансформатора сухого 2000 квА с литой изоляцией.
- Производитель: Востокэнерготранс;
- Тип: Силовой трансформатор;
- Вид: Трехфазные;
- Концепция конструкции: Стержневые;
- Охлаждение: Воздушное;
- Номинальная мощность: 2000 кВа;
- Номинальное высшее напряжение: 10 кВ ВН;
- Номинальное низшее напряжение: 0.4 кВ НН;
- Степень защиты кожуха (корпус): IP00 без кожуха;
- Схема и группа соединения обмоток: D/Yн-11 (треугольник / звезда);
- Расположение вводов трансформатора: Верхнее;
- Материал обмотки: Алюминий;
- Вид трансформатора: Трехфазный;
- Уровень шума дB (A): Менее 70;
- Охлаждение: Естественное С (AN/AF);
- Высота установки над уровнем моря, м: До 1000;
- Потери холостого хода (120°C) ± 15%, Вт: 3050;
- Потери короткого замыкания (120°C) ± 10%, Вт: 14450;
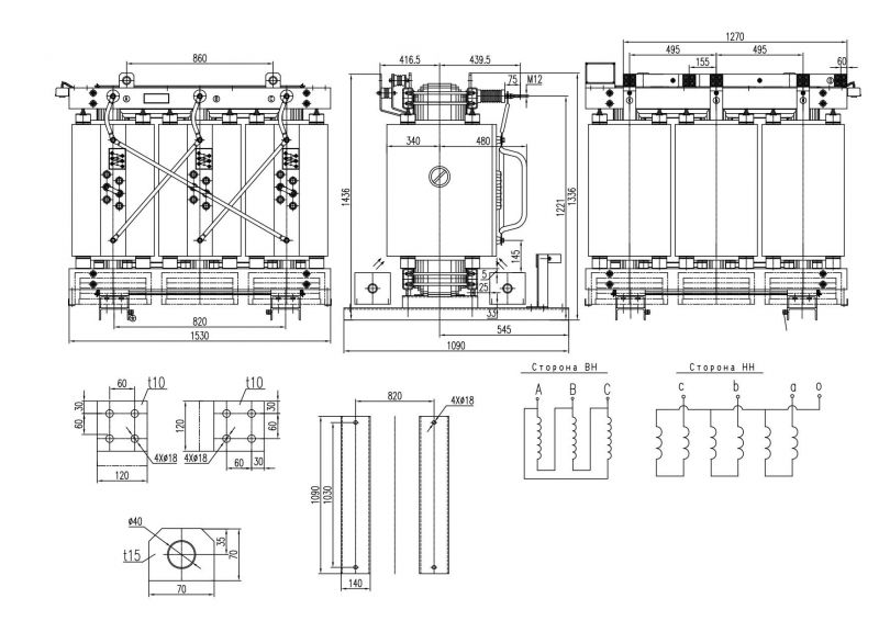
- Габариты трансформатора, мм: 1530*1090*1336;
- Колея колес (или опор), мм: 820*1030;
- Вес трансформатора без кожуха ± 10%, кг: 3510.
Чертеж сухого трансформатора ТСЛ 2000 ква с литой изоляцией.

Типовая комплектация трансформаторов ТСЛ 2000 ква 10/0,4:
- — Вентиляторы;
- — Цифровой блок температурного контроля BWDK с терморегулятором и датчиком температуры обмоток (3−4 шт) выполняющий роль шкафа тепловой защиты.
- — Трансформатор;
- — Транспортные колёса — ролики;
- — Паспорт на трансформатор;
- — Сертификат сейсмостойкости (до 9 баллов);
- — Сертификат соответствия ГОСТ Р12.1.004−91 «Система стандартов безопасности труда. Пожарная безопасность».
- — Протокол испытаний независимой лаборатории на соответствие товара заявленным характеристикам Гарантийные обязательства 60 месяцев с момента передачи товара покупателю.
Тип объявления:
Срок размещения:
Рубрика:











