Технические характеристики сухого трансформатора с литой изоляцией 2500 квА:
- • Производитель: Востокэнерготранс;
- • Тип: ТСЛ (трехфазный, сухого типа с литой изоляцией);
- • Концепция конструкции: Стержневой;
- • Номинальная мощность: 2500;
- • Номинальное напряжение на стороне ВН, кВ: 6;
- • Номинальное напряжение на стороне НН, кВ: 0.4;
- • Материал обмотки: Алюминий;
- • Напряжение короткого замыкания Uкз%: 6;
- • Частота питающей сети, Гц: 50;
- • Степень защиты кожуха (корпус): IP00;
- • Переключение без возбуждения (ПБВ), %: ±2×2,5;
- • Схема и группа соединения обмоток: D/Yн-11 (треугольник-звезда);
- • Уровень шума дB (A): Менее 70;
- • Охлаждение: Естественное С (AN /AF)
- • Высота установки над уровнем моря, м: До 1000;
- • Потери холостого хода (120°C) ± 15%вт, 3600;
- • Потери короткого замыкания (120°C) ± 15%, Вт: 17170;
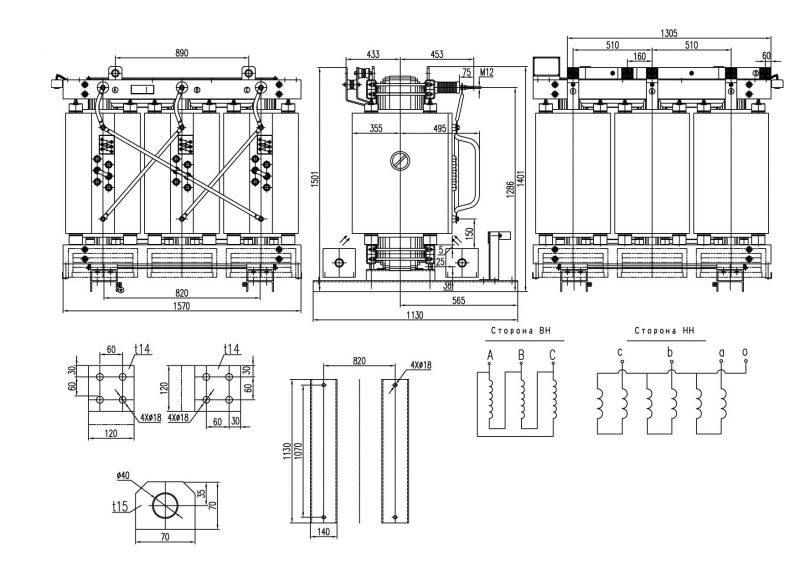
- • Габариты трансформатора, мм: 1570*1130*1401;
- • Колея колес (или опор), мм: 820*1070;
- • Вес трансформатора без кожуха, кг: 4065;
- • Климатическое исполнение: УХЛЗ — неотапливаемые помещения с возможной конденсацией.
- • Тип ввода ВН: Шина.
Чертеж сухого трансформатора 2500 кВА

Типовая комплектация трансформаторов 2500 кВА
- • Вентиляторы 6 шт;
- • Цифровой блок температурного контроля BWDK с терморегулятором и датчиком температуры обмоток (3−4 шт) выполняющий роль шкафа тепловой защиты.
- • Трансформатор;
- • Транспортные колёса — ролики;
- • Паспорт на трансформатор с отметкой ОТК;
- • Сертификат сейсмостойкости (до 9 баллов)
- • Сертификат соответствия ГОСТ Р12.1.004−91 «Система стандартов безопасности труда. Пожарная безопасность».
- • Протокол испытаний независимой лаборатории на соответствие товара заявленным характеристикам.
Гарантийные обязательства 60 месяцев с момента передачи товара покупателю.Чертеж сухого трансформатора ТСЛ 2500 ква с литой изоляцией прилагается.
Тип объявления:
Срок размещения:
Рубрика:











